-
角式自動調節蝶閥(ZAJ..
-
ZGF-450/650自動調節高..
-
電動蝶閥(ZKJWa/b-0.6..
-
D341W-0.5C/FD341W-0...
-
手動蝶閥|矩形手動蝶閥..
-
高溫蝶閥(YDDB型)(煙道..
-
手動百葉圓式(窗式)閥
-
TPO 蝶閥
-
Swb型手動蝶閥
-
DYF電動圓板閥
-
電動百葉圓式(窗式)閥
-
高溫調節閘閥(三次風閥..
-
電動高溫蝶閥
-
S/WTF-Ⅰ手動蝶閥
-
GDTD-S手動對夾式通風..
-
SZT300/SZT300-Ⅰ/SZT..
-
DBG1-10固定式疊包機
-
電動轉彎溜子
-
水泥火車散裝機
-
汽車散裝機
-
電廠粉煤灰散裝機
-
熟料散裝機
-
SZ兩庫連體散裝機
-
船舶散裝機(裝船機)
-
CSZ-300散裝船系統
-
水泥散裝機
-
輕型蝶閥
-
高性能密封蝶閥
-
EF-C腭式閘門
-
扇形閥門/電液動扇形閘..
-
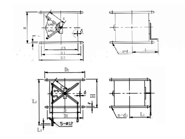
單雙層棒條閥
-
電動圓形百葉閥
-
QTLV-0.1氣動推桿平板..
-
電動、電液動推桿平板..
-
SLVds-0.1手動單、雙向..
-
鎖風裝置
-
ZSfyV錐形鎖風閥
-
DbSzF型雙層雙門重錘式..
-
DbKSFjy--I II雙層電動..
-
DXV-F(Y)星形卸灰閥
-
SK雙路輸送閥
-
電動、手動、電液動、..
-
斜槽分料閥
-
WCFzx物料調節閘門
-
氣動棒條閥、電液動棒..
-
電液動閘閥、平板閘閥..
-
電液動三通分料閥
-
螺旋閘門
-
高溫閘門
-
棒條式閘閥(棒條閥)
-
電動四通翻板溜子
-
電動重錘翻板鎖氣卸灰..
-
氣動錐斗插板閥
-
電動錐斗插板閥
-
手動錐斗插板閥
-
ZDSY電動Y型疏水閥
-
電動軌道球閥
-
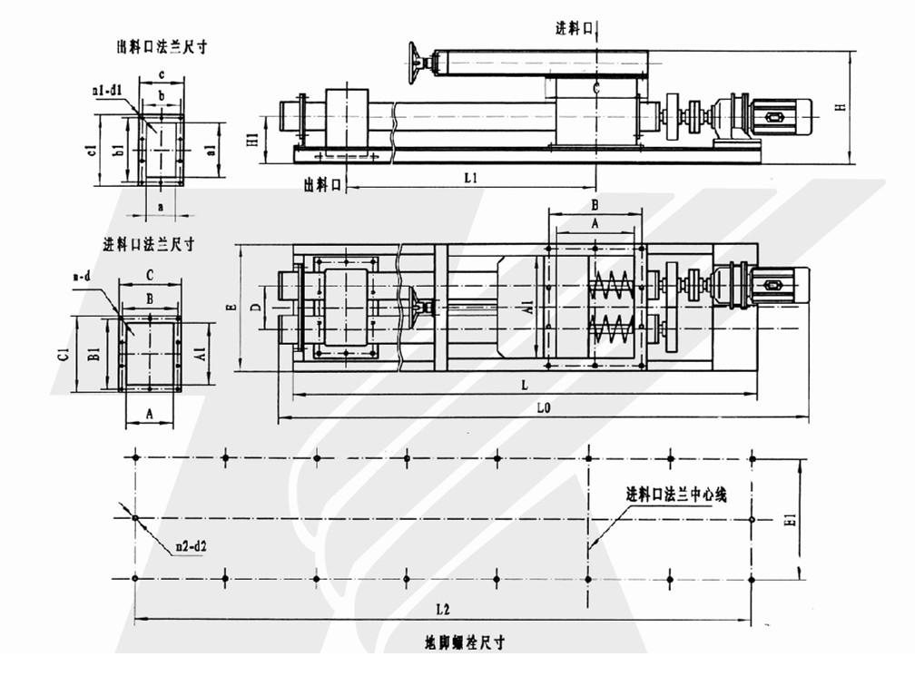
電動調節蝶閥
-
電動三通調節球閥
-
電動流量控制閥
-
氣動開關閥
-
單層重錘式鎖風翻板閥
-
XG星型卸灰閥(剛性葉..
-
CSD150/100庫側、庫底..
-
CP卸料閥系統(卸料裝..
-
流量控制閥/回轉閥
-
FC三、四通溜子
-
LZ螺旋閘門
-
PB-Ⅰ/PB-Ⅱ平板閘門
-
BZ-Ⅰ/Ⅱ棒條閘門
-
FLD\FKQ-N流量閥、開關..
-
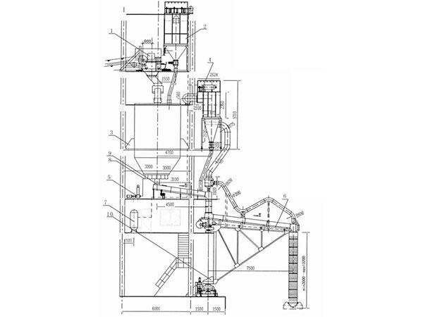
水泥儲存庫
-
空氣輸送斜槽
-
充氣箱
-
庫底卸料器(Kx型)
-
XS\XD庫側、庫底卸料器
-
庫底卸料閥系統
-
XS-C庫底庫側卸料裝置
-
均化庫庫側檢修門
-
壓力平衡閥
-
回轉式空氣分配器
-
生料分配器
-
間隙式均化庫
-
連續式均化庫
-
MF生料均化庫
-
IBAU均化庫
-
CP生料均化庫
-
均化庫系統庫側、庫底..
-
WCF-Z/X物料調節閘門(..
-
XS-N卸料裝置






.jpg)



























